it

2 bedroom apartment for sale in Opera

Opera - 2 bedroom apartment for sale
280,000 €
Primal Features
115 m²
Surface
3
Locals
2
Bathrooms
Description
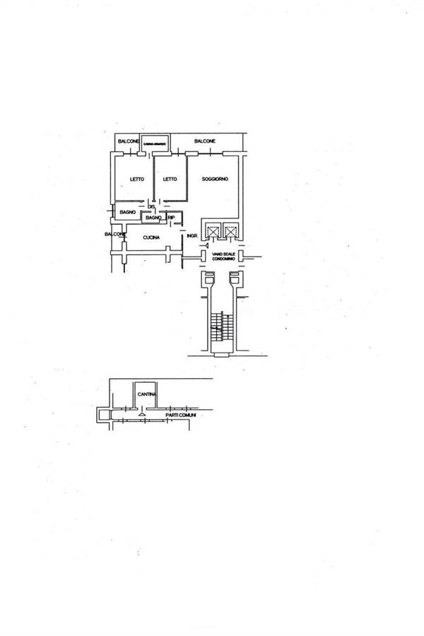
Via Sporting Mirasole. In an elegant building from the 70s with 24-hour concierge service and a large communal garden, we offer for sale a spacious three-room apartment of 115 square meters composed of: entrance hall, hallway, living room with large balcony, large habitable kitchen, second balcony with storage room/laundry room. Night hallway with two bedrooms, two bathrooms, one with a window and the other with forced aspiration. One bathroom with a whirlpool tub and one with a shower. Walk-in closet in the bedroom, three balconies (one in the living room, kitchen, and bedroom). The apartment was completely renovated about three years ago. Interior finishes include an armored door, porcelain stoneware floors throughout the house. PVC double-glazed windows with sliding and tilting opening. Mosquito nets throughout the house. Electric shutters. Awning. Interior doors in oak wood. Air conditioning throughout the house. Double angular exposure. Very bright property due to its South-West exposure. Centralized heating and hot water are included in the condominium fees. Inside the condominium, there is a very large communal garden with many children's play equipment. Excellent for those who love jogging as the park allows it. Served by supermarkets, bars, bakeries, pharmacies, etc. There are elementary schools, middle schools, an agricultural institute, a high school, and the American English school. In addition to the Le Rovedine golf course. Well connected to Milan because the 99 bus goes to various parts of Ripamonti, at night it stops at the Brenta metro. The 222 bus passes under the house and terminates with the 24 tram on Via Ripamonti, which is reachable in just 10 minutes. Furthermore, there is the possibility of parking inside the Sporting complex, where access is allowed only to residents. Available upon registration. Asking price €280,000.00.

WANT TO SELL YOUR HOME?
WANT TO KNOW HOW MUCH YOUR PROPERTY IS WORTH?
CONTACT US FOR A FREE AND NO-OBLIGATION VALUATION OF YOUR APARTMENT. KNOWING THE VALUE OF YOUR PROPERTY IS IMPORTANT.

GG Immobiliare comes from 18 years of experience in the real estate sector, particularly in the Vigentino - Fatima district and other areas of Milan. We offer fifteen years of experience and professionalism in the real estate sector. In addition to the sale of individual apartments, we deal with real estate development throughout the Milan area.

For a valuation of your property, contact us at the following telephone numbers. Tel. Cell.
Branch sales office Via Ripamonti No. 227, shop entrance Via Dei Guarneri no. 2 opposite Piazzale Madonna di Fatima. e-mail:.
Characteristics
Code:
GG Gaetano
City:
Opera
Category:
2 bedroom apartment
Expanses:
3,960 € / year
Locals:
3
Bathrooms:
2
Sqm:
115
Walkable sqm:
110
Sqm garden:
1
Balconies:
1
Floor:
1
Year:
1980
Energetic class:
F
175
Property Conditions:
Renovated
Orientation:
South West
Garden:
Common
Heating:
Central
Accessories
Air conditioning
Elevator
Floorplans
Map
Sporting Mirasole - Opera (MI)
Information request
Cookie preference