en

3 locali in vendita a Milano

Milano - 3 locali in vendita
480.000 €
Caratteristiche principali
100 m²
Superficie
3
Locali
1
Bagni
1
Box auto
Descrizione
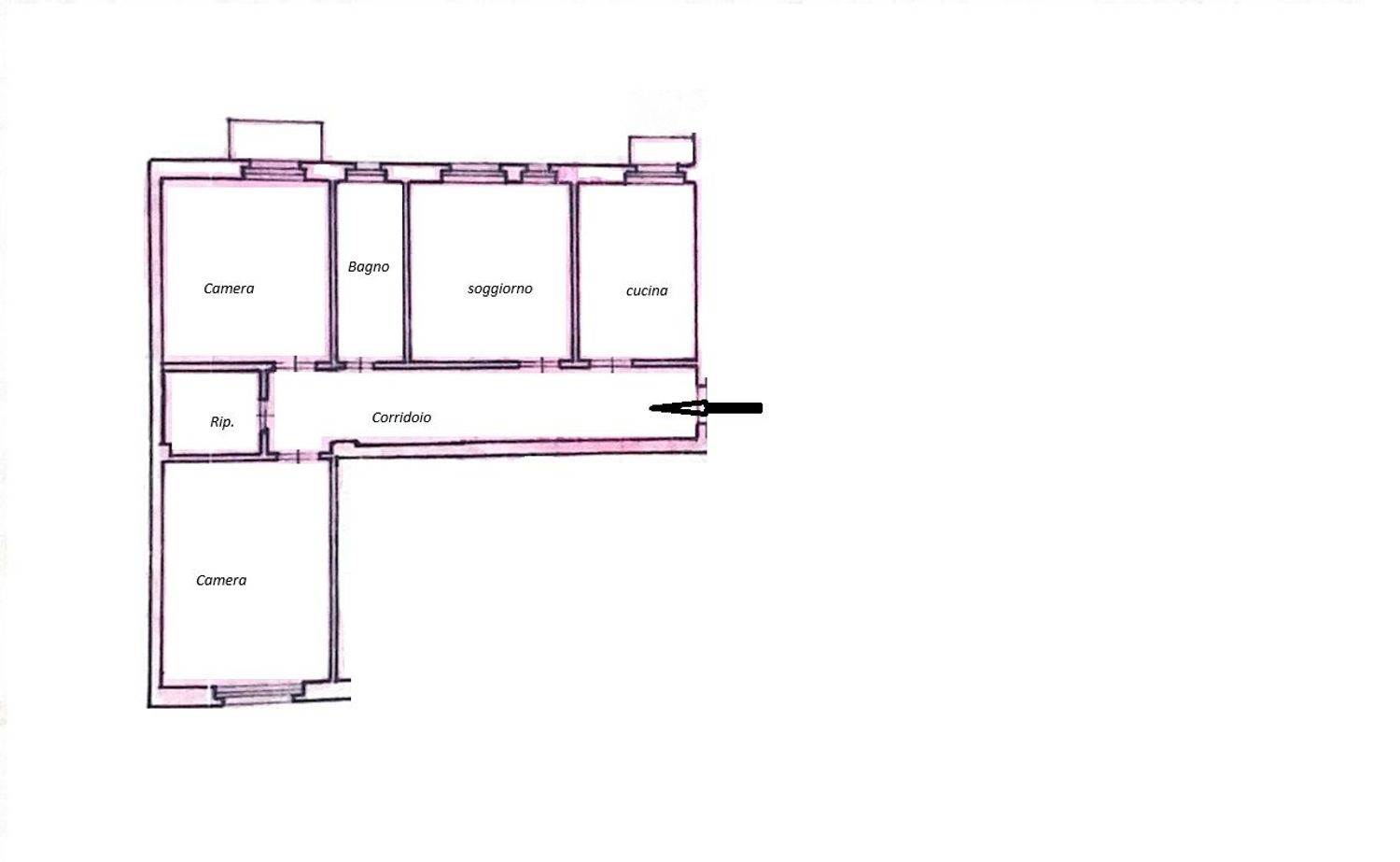
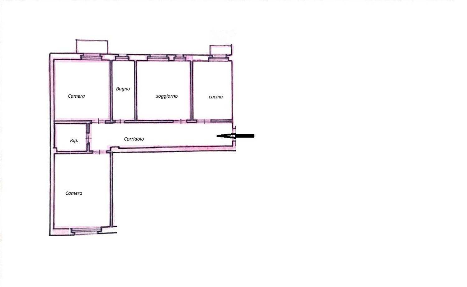
Via Privata Puricelli immediate vicinanze Piazzale Siena – Piazzale Bande Nere. In mini palazzina di quattro piani degli anni settanta con facciata in clinker, proponiamo in vendita ampio trilocale di 100 mq al secondo piano con ascensore così composto da: Ingresso disimpegno, cucina abitabile con balcone, soggiorno, camera matrimoniale con balcone, seconda camera matrimoniale, bagno finestrato e ripostiglio. Esposizione doppia Est- Ovest. Come finiture interne troviamo la porta blindata, pavimenti in marmo per tutta la casa. Ceramica nel bagno. Infissi PVC doppi vetri. Tapparelle elettriche nelle porte finestre mentre sono manuali nelle finestre. Riscaldamento centralizzato con radiatori. L’immobile si trova a soli 500 metri della metropolitana linea Rossa Primaticcio che collega il centro di Milano in soli 10 minuti. Oltre l’altra fermata di Piazzale Bande Nere. Nelle immediate vicinanze troviamo diversi supermercati, come Carrefour aperto h24 a Piazzale Siena raggiungibile a piedi in soli 5 minuti. Negozi di vario genere farmacia, ristoranti palestre pizzerie gelaterie ecc. Servito di scuole e altri servizi. Parco pubblico nelle immediate vicinanze ottimo per chi fa jogging. Completa l’appartamento la cantina e solaio di pertinenza. Possibilità box auto di 20 mq al piano terra e posto auto interno scoperto. Libero subito vero affare € 480.000,00.
VUOLE VENDERE O AFFITTARE CASA A MILANO?
VUOLE SAPERE QUANTO VALE IL SUO IMMOBILE?
CI CONTATTI PER UNA VALUZIONE GRATUITA E SENZA IMPEGNO DEL SUO APPARTAMENTO. SAPERE IL VALORE DEL PROPRIO IMMOBILE E' IMPORTANTE.
GG Immobiliare viene da un'esperienza di 20 anni del settore immobiliare, in particolare nel quartiere Vigentino - Fatima e in altre zone di Milano. Mettiamo a disposizione l'esperienza e la professionalità ventennale del settore immobiliare. Oltre alla vendita dei singoli appartamenti ci occupiamo di sviluppo immobiliare sul tutto il territorio milanese.
Per una valutazione del vostro immobile ci contatti ai seguenti numeri di telefono. Tel. Cell.
Filiale ufficio vendite via Ripamonti N° 227, ingresso negozio via Dei Guarneri n. 2 di fronte Piazzale Madonna di Fatima. e-mail:.
Caratteristiche
Codice:
34158635
Città:
Milano
Categoria:
3 locali
Spese condominiali:
2.400 € / anno
Locali:
3
Bagni:
1
Mq:
100
Mq calpestabili:
96
Box auto:
1
Mq Box:
20
Posti auto:
1
Balconi:
1
Piano:
2
Anno:
1970
Classe energetica:
E
160
Stato Immobile:
Buono
Grado:
Medio
Orientamento:
Ovest Est
Lati Liberi:
2
Riscaldamento:
Centralizzato
Serramenti:
Ottimo
Persiana:
Tapparella Metallo
Pavim. Giorno:
Marmo
Pavim. Notte:
Marmo
Pavim. Cucina:
Marmo
Pavim. Bagno:
Ceramica
Accesso Disabili:
Rampa
Accesso interno disabili:
Pieno accesso
Accessori
Ascensore
Doppi Vetri
Fibra Ottica
Inferriate
Porta Blindata
Ripostiglio
Tapparelle Elettriche
Video Citofono
Planimetrie
Mappa
Gian Pietro Puricelli, 4 - Milano (MI)
Richiedi informazioni
Cookie preference