en

Luminoso trilocale via Chopin

MilanoChiesa Rossa/ Cermenate/ Ripamonti - 3 locali in vendita
390.000 €
Caratteristiche principali
90 m²
Superficie
3
Locali
2
Camere
1
Bagni
Descrizione
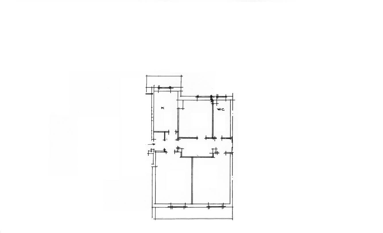
Via Federico Chopin, in stabile anni 70 con servizio di portineria full time ed ampio giardino alberato condominiale, proponiamo in vendita luminoso trilocale di mq 90 situato ad un primo piano alto con ascensore e composto da ingresso, disimpegno, soggiorno con balcone, cucina abitabile con secondo balcone, corridoio che porta a due camere da letto, bagno finestrato e ripostiglio.
L’appartamento è semi ristrutturato con ampio potenziale di personalizzazione, pavimenti originali in marmo, gres porcellanato in bagno, parquet laminato in cucina. Il bagno è stato ristrutturato nel 2020 come anche gli Infissi doppio vetro in PVC incluse tapparelle e cassone. Porta blindata, Inferiate in acciaio in cucina, scaldabagno esterno cambiato recentemente. Doppia esposizione Est – Ovest che lo rendo molto luminoso ed arieggiato, inoltre essendo lontano dalla strada permette di godere di un prezioso silenzio ed una piacevole vista sugli alberi del parchetto di fronte.
Il quartiere Fatima è ben servito a partire da supermercati, farmacie, edicole e bar oltre a parco giochi e campetto da calcio parrocchiale. Le scuole sono a 5 minuti a piedi dall’abitazione tra cui asili nido, scuole elementari e medie.
Come mezzi pubblici autobus 34 che si collega alla linea gialla Brenta M3 ed il Tram 24 che raggiunge porta romana in 10 minuti, il Duomo in 20 minuti, Fondazione Prada e quartiere SOUPRA raggiungibili a piedi
Riscaldamento centralizzato con termo valvole. Spese condominiali annue € 2.500,00 incluso riscaldamento e portineria. Completa l’appartamento una spaziosa cantina. Possibilità box auto. Richiesta € 390.000,00. Libero al rogito.
VUOLE VENDERE O AFFITTARE CASA A MILANO?
VUOLE SAPERE QUANTO VALE IL SUO IMMOBILE?
CI CONTATTI PER UNA VALUZIONE GRATUITA E SENZA IMPEGNO DEL SUO APPARTAMENTO. SAPERE IL VALORE DEL PROPRIO IMMOBILE E' IMPORTANTE.
GG Immobiliare viene da un'esperienza di 20 anni del settore immobiliare, in particolare nel quartiere Vigentino - Fatima e in altre zone di Milano. Mettiamo a disposizione l'esperienza e la professionalità ventennale del settore immobiliare. Oltre alla vendita dei singoli appartamenti ci occupiamo di sviluppo immobiliare sul tutto il territorio milanese.
Per una valutazione del vostro immobile ci contatti ai seguenti numeri di telefono. Tel. 02 87078053- 02 36565703. Cell. 339 2545009.
Filiale ufficio vendite via Ripamonti N° 227, ingresso negozio via Dei Guarneri n.2 di fronte Piazzale Madonna di Fatima. e-mail: info@immobiliaregg.it
Caratteristiche
Codice:
V000182
Città:
Milano (Chiesa Rossa/ Cermenate/ Ripamonti)
Categoria:
3 locali
Spese condominiali:
2.500 € / anno
Locali:
3
Camere:
2
Bagni:
1
Mq:
90
Mq calpestabili:
86
Balconi:
2
Mq Balcone:
2
Anno:
1970
Classe energetica:
E
90 kWh/m²a
Stato Immobile:
Buono
Grado:
Medio
Posizione:
Centro
Panorama:
Vista Giardino
Orientamento:
Ovest Est
Lati Liberi:
2
Giardino:
Comune
Arredi:
Non Arredato
Tipo Soggiorno:
Soggiorno
Tipo Cucina:
Abitabile
Riscaldamento:
Centralizzato
Tipo Riscaldam.:
Caldaia
Tipo Impianto:
Radiatori
Fonte Energetica:
Metano
Acqua Calda:
Autonoma
Raffrescamento:
Centralizzato
Infissi:
PVC Doppio Vetro
Serramenti:
Nuovo
Persiana:
Tapparella PVC
Pavim. Giorno:
Marmo
Pavim. Notte:
Marmo
Pavim. Cucina:
Laminato
Pavim. Bagno:
Gres Porcellanato
Accesso Disabili:
No
Accesso interno disabili:
Parziale
Impianto d’irrigazione:
No
VMC:
Si
Accessori
Ascensore
Cancello Elettrico
Doppi Vetri
Fibra Ottica
Inferriate
Ingresso indipendente
Parco Condominiale
Passaggio Automobilistico
Passaggio Pedonale
Porta Blindata
Portineria/Custode
Ripostiglio
Mappa
Via Chopin - Milano (MI)
Richiedi informazioni
Cookie preference